Tủ Rack (Tủ mạng) là một thiết bị chứa và lắp đặt các thiết bị điện tử như máy chủ, và thiết bị mạng trong một không gian gọn gàng và có tổ chức. Tủ Rack thường có kết cấu dạng khung thép, với các thanh đỡ (rack rails) để gắn các thiết bị vào. Tủ Rack thường được sử dụng trong các trung tâm dữ liệu, văn phòng, trường học, và các môi trường công nghiệp khác để tạo ra một hệ thống mạng và hệ thống điện tử có tổ chức và dễ quản lý.
1. Các thành phần chính của tủ Rack

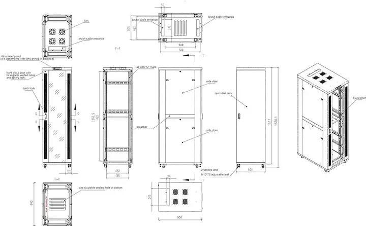
Tủ Rack thường bao gồm các thành phần chính sau:
Khung là phần chính của tủ Rack, được làm bằng thép hoặc nhôm. Khung có nhiệm vụ tạo hình dáng và cung cấp hỗ trợ cho các thiết bị điện tử. Khung cũng có vai trò quan trọng trong việc bảo vệ các thiết bị bên trong tủ Rack khỏi các yếu tố bên ngoài như bụi bẩn, ẩm ướt hay va đập.
Cánh cửa được gắn vào mặt trước hoặc sau của tủ Rack và có thể được mở ra để tiếp cận các thiết bị điện tử bên trong. Cánh cửa thường được làm bằng kim loại hoặc kính, giúp người dùng dễ dàng quan sát và truy cập vào các thiết bị bên trong tủ.
Panel bên được gắn vào hai bên của tủ Rack và có thể được tháo rời để tiếp cận các thiết bị điện tử bên trong. Panel bên thường được làm bằng kim loại hoặc kính, giúp bảo vệ các thiết bị bên trong khỏi các yếu tố bên ngoài và đồng thời cũng giúp tăng tính thẩm mỹ cho tủ Rack.
Giá đỡ thiết bị được gắn vào bên trong tủ Rack và có nhiệm vụ hỗ trợ các thiết bị điện tử. Giá đỡ thiết bị thường được làm bằng kim loại, có thể điều chỉnh độ cao và độ sâu để phù hợp với các thiết bị khác nhau.
Quạt làm mát được gắn vào bên trong tủ Rack và có nhiệm vụ lưu thông không khí để làm mát các thiết bị điện tử. Quạt làm mát thường được điều khiển bằng nhiệt độ, tự động điều chỉnh tốc độ quạt để đảm bảo các thiết bị bên trong luôn được giữ ở nhiệt độ an toàn.
2. Công dụng của tủ Rack
Tủ Rack có vai trò quan trọng trong việc lưu trữ và bảo vệ các thiết bị điện tử. Đặc biệt, tủ Rack được sử dụng rộng rãi trong các trung tâm dữ liệu và phòng máy chủ, nơi cần lưu trữ và bảo vệ hàng loạt các thiết bị điện tử quan trọng. Tủ Rack cũng được sử dụng trong các cơ sở kinh doanh như ngân hàng, trường học hay bệnh viện để lưu trữ các thiết bị viễn thông và máy tính.
Ngoài ra, tủ Rack còn có vai trò quan trọng trong việc tối ưu hóa không gian và tiết kiệm chi phí. Thay vì phải lắp đặt từng thiết bị riêng lẻ, các thiết bị có thể được lắp đặt vào trong tủ Rack, giúp tiết kiệm diện tích và giảm chi phí lắp đặt.
3. Các thông số quan trọng cần lưu ý khi chọn mua tủ Rack
Khi lựa chọn mua tủ Rack, có một số thông số quan trọng cần lưu ý để đảm bảo tủ phù hợp với nhu cầu sử dụng của bạn.

3.1. Đơn vị tính chiều cao (U)
Đơn vị chiều cao tủ Rack được đo bằng “U” và thường được hiển thị ở phía trước hoặc phía sau của tủ. Một U tương đương với khoảng 1,75 inch (4,45 cm) chiều cao. Vì vậy, một tủ Rack có độ cao 42U sẽ có chiều cao khoảng 73,5 inch (186,69 cm).
3.2. Chiều sâu
Chiều sâu của tủ Rack cũng là một yếu tố quan trọng cần lưu ý, đặc biệt là khi bạn có các thiết bị có kích thước lớn. Thông thường, chiều sâu của tủ Rack dao động từ 600mm đến 1200mm. Nếu bạn có các thiết bị có kích thước lớn hơn, hãy chắc chắn rằng tủ Rack có độ sâu phù hợp để không gây khó khăn trong việc lắp đặt, lưu thông không khí và tiếp cận các thiết bị bên trong.
3.3. Chiều ngang
Chiều ngang của tủ Rack cũng là một thông số quan trọng, đặc biệt khi bạn có nhiều thiết bị cần lắp đặt. Thông thường, chiều ngang phổ biến của tủ Rack dao động từ 19 inch (48,26 cm) đến 24 inch (60,96 cm), cũng có những tủ Rack nhỏ hơn. Nếu bạn có các thiết bị có kích thước lớn hơn hoặc nhỏ hơn tủ, hãy chắc chắn rằng tủ Rack có chiều ngang phù hợp để không gây khó khăn trong việc lắp đặt và tiếp cận các thiết bị bên trong.
3.4. Tiêu chuẩn công nghiệp
Khi lựa chọn mua tủ Rack, bạn cần lưu ý đến các tiêu chuẩn công nghiệp như EIA-310-D hoặc IEC 60297 để đảm bảo tủ phù hợp và tính đồng bộ với các thiết bị điện tử hiện có của bạn. Các tiêu chuẩn này đảm bảo tính tương thích và độ tin cậy của tủ Rack.
4. Tương lai của tủ Rack
Với sự phát triển không ngừng của công nghệ, tủ Rack cũng đang dần được cải tiến và phát triển để đáp ứng nhu cầu ngày càng cao của người dùng. Hiện nay, các tủ Rack đã được tích hợp thêm các tính năng như hệ thống quản lý nguồn điện, dây cáp, hệ thống làm mát thông minh và khả năng chịu tải cao hơn.
Ngoài ra, với sự phổ biến của công nghệ điện toán đám mây, tủ Rack cũng đang dần trở thành một phần không thể thiếu trong việc triển khai các hệ thống điện toán đám mây. Tủ Rack hiện đại còn có thể tích hợp các tính năng như hệ thống giám sát từ xa và hệ thống báo động khi có sự cố xảy ra.

5. Mua tủ Rack chất lượng, uy tín ở đâu?
Viễn Thông Tia Sáng là địa chỉ uy tín cung cấp tủ Rack chất lượng, với đội ngũ kỹ sư giàu kinh nghiệm và nhiệt tình. Không chỉ giỏi về chuyên môn, Viễn Thông Tia Sáng còn luôn lắng nghe và tận tình tư vấn cho khách hàng. Sự kết hợp giữa chuyên môn và tinh thần phục vụ đã giúp Viễn Thông Tia Sáng xây dựng được uy tín và danh tiếng trong lĩnh vực. Với cam kết về chất lượng và dịch vụ, Viễn Thông Tia Sáng không chỉ là nhà cung cấp mà còn là đối tác đáng tin cậy của các tổ chức và doanh nghiệp trong việc xây dựng hệ thống mạng an toàn và hiệu quả.
6. Kết luận
Tủ Rack là một giải pháp hiệu quả cho việc lưu trữ và bảo vệ các thiết bị điện tử. Với các thành phần chính như khung, cánh cửa, panel bên, giá đỡ thiết bị và quạt làm mát, tủ Rack đảm bảo tính an toàn và tiện lợi cho người dùng. Khi lựa chọn mua tủ Rack, bạn cần lưu ý đến các thông số quan trọng như đơn vị tủ Rack (U), chiều sâu, chiều ngang và tiêu chuẩn công nghiệp để đảm bảo tủ phù hợp với nhu cầu sử dụng của bạn. Hiện nay, có nhiều đơn

Thông tin liên hệ:
Để lại thông tin lên hệ: